การใช้กราไฟท์ทนน้ำทำให้กราไฟท์แจ็คเก็ตน้ำสามารถเป็น HCl ได้อย่างมีประสิทธิภาพ คุณสามารถผลิตและรับประกันการควบคุมอุณหภูมิที่แม่นยำและเงื่อนไขปฏิกิริยาที่เหมาะสมที่สุดได้
หมายเลขสินค้า :
SSLสั่งซื้อ (ขั้นต่ำ) :
1การชำระเงิน :
Alipay PayPal westernunion T/T L/Cแหล่งกำเนิดสินค้า :
Chinaสี :
Customizedท่าเรือขนส่ง :
shanghai shenzhen guangzhouระยะเวลาดำเนินการ :
please contact 504893184@qq.com or CP +8613696510409บรรจุุภัณฑ์ :
Customizedวัสดุ :
Graphiteอุณหภูมิการทำงาน :
Export≤45℃,Graphite wall≤170℃เตาสังเคราะห์ไฮโดรเจนคลอไรด์กราไฟท์หุ้มน้ำ
ประกอบด้วยเปลือกเหล็ก ฝาครอบเตากราไฟต์ กระบอกสูบสังเคราะห์ และฐานเตา มีข้อดีเหนือกว่าเตาเปลือกเหล็กหลายประการ ได้แก่:
1. อายุการใช้งานยาวนาน (โดยปกติมากกว่าสิบปี)
2. ความบริสุทธิ์ของกรดผลิตภัณฑ์สูง
3. สภาพการทำงานที่เอื้ออำนวยพร้อมการควบคุมและการจัดการที่ง่ายดาย
ข้อดีของผลิตภัณฑ์
เตาเผาสังเคราะห์ไฮโดรเจนคลอไรด์กราไฟต์แบบหุ้มด้วยน้ำมีคุณสมบัติต้านทานการกัดกร่อนได้ดีเยี่ยม ถ่ายเทความร้อนได้อย่างมีประสิทธิภาพ ควบคุมอุณหภูมิได้อย่างเสถียร และความทนทานยาวนาน โครงสร้างที่แข็งแกร่งช่วยให้มั่นใจได้ถึงประสิทธิภาพที่เชื่อถือได้ในสภาพแวดล้อมทางเคมีที่รุนแรง มอบการผลิต HCl ที่ปลอดภัย สม่ำเสมอ และมีประสิทธิภาพ พร้อมข้อกำหนดการบำรุงรักษาที่น้อยที่สุด
แผนผังโครงสร้าง
| รายละเอียดชิ้นส่วน | |
| 1 | พอร์ตป้องกันการระเบิด |
| 2 | ช่องระบายน้ำหล่อเย็น |
| 3 | ช่องระบายความร้อน |
| 4 | ทางออกของ HCl |
| 5 | กระบอกสูบสังเคราะห์กราไฟท์ |
| 6 | ประตูเตาเผา |
| 7 | ช่องรับน้ำหล่อเย็น |
| 8 | กระจกเงา |
| 9 | ชุดเตาเผาแก้วควอตซ์ 3 ชุด |
| 10 | กระจกเงา |
| 11 | พอร์ตระบายน้ำ |
| 12 | ทางออกของกรด |
| 13 | ช่องรับคลอรีน |
| 14 | ทางเข้าไฮโดรเจน |
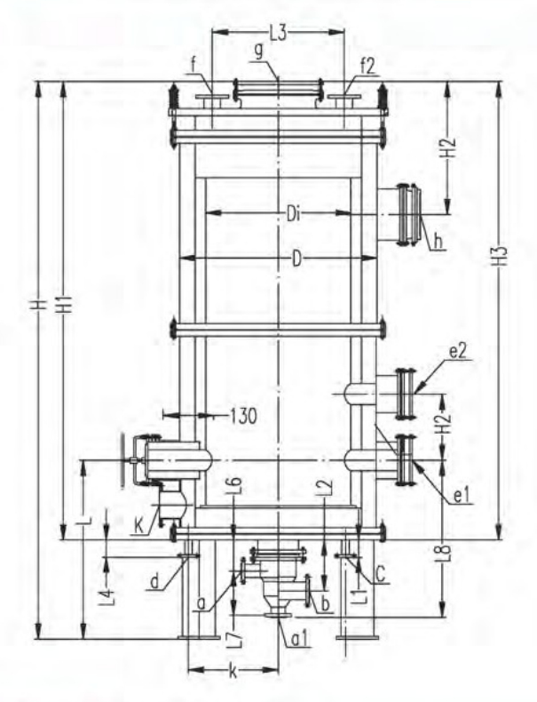
ตารางพารามิเตอร์หัวฉีด

| เครื่องหมาย | a | b | c | d | e | f | g | h | k |
| ข้อมูลจำเพาะ | ดีเอ็น/ดี1 | ดีเอ็น/ดี1 | DN | DN | DN | DN | DN | ดีเอ็น/ดี1 | DN |
| เอสเอสแอล-300 | 40/125 | 40/125 | 20 | 50 | 125 | 80 | 250 | 75/180 | 40 |
| เอสเอสแอล-400 | 55/145 | 55/145 | 20 | 50 | 125 | 100 | 250 | 100/210 | 50 |
| เอสเอสแอล-500 | 70/180 | 70/180 | 20 | 50 | 125 | 125 | 250 | 125/240 | 65 |
| เอสเอสแอล-600 | 84/210 | 84/210 | 20 | 50 | 125 | 150 | 400 | 150/295 | 80 |
| เอสเอสแอล-700 | 100/210 | 100/210 | 20 | 50 | 125 | 200 | 400 | 200/350 | 100 |
| เอสเอสแอล-800 | 115/240 | 115/240 | 20 | 50 | 125 | 200 | 400 | 200/350 | 100 |
| เอสเอสแอล-900 | 115/240 | 115/240 | 20 | 50 | 125 | 200 | 400 | 250/400 | 125 |
| เอสเอสแอล-1000 | 115/240 | 115/240 | 20 | 50 | 125 | 200 | 400 | 250/400 | 150 |
| หัวฉีด มาตรฐานการเชื่อมต่อ |
เอชจี 20593 | เอชจี 20593 | - | เอชจี 20593 | - | เอชจี 20593 | - | - | เอชจี 20593 |
| ระดับความดัน เมกะปาสคาล |
1.0 | 1.0 | - | 1.0 | - | 1.0 | - | 1.0 | 1.0 |
| การใช้งานหัวฉีด | ทางเข้าไฮโดรเจน | ทางเข้าไฮโดรเจน | ทางออกของกรด | พอร์ตไอเสีย | พอร์ตมิเรอร์ | ท่อระบายน้ำ | พอร์ตป้องกันการระเบิด | ทางออกไฮโดรเจนไฮโดรเจน | ช่องรับน้ำหล่อเย็น |